Art.-Nr. 30563-3
Gartenhaus Bastrup aus Fichtenholz in verschiedenen Farben und Größen von KARIBU
Das Gartenhaus Bastrup aus nordischer Fichte von KARIBU wird aus 28 mm Wandbrettern im Steck-/Schraubsystem gefertigt und kann somit rasch und einfach aufgebaut werden. Das praktische Pultdach aus Massivholz sorgt dafür, dass das Gartenhaus schnell und wirkungsvoll gegen Witterungseinflüsse geschützt ist. Dank der Seitenhöhe von ca. 202 cm und einer Firsthöhe von ca. 220 cm sorgt das Haus innen für viel Platz. Kesseldruckimprägnierte Bodenbalken sorgen für optimalen Schutz gegen aufsteigende Feuchtigkeit. Durch die Positionierung unter dem Gartenhaus schützen die Bodenbalken effektiv vor Staunässe und Spritzwasser. Das Gartenhaus wird mit der, praktischerweise schon vormontierten Tür, im stabilen Massivholzrahmen ausgeliefert und bietet dank der großen Öffnung bequemen Zutritt in das Haus. Nebenbei bietet sie effektiven Schutz vor Diebstahl. Gleichzeitig lassen die großzügigen Lichtausschnitte im jeweiligen Türflügel ausreichend Tageslicht in das Gartenhaus einströmen.
Sehen Sie sich auch die Anbauten und das zahlreiche Zubehör an, welches Sie in der entsprechenden Rubrik bei uns finden.
Bitte beachten: das Gartenhaus wird ohne Fußboden und, sofern nicht anders ausgewählt oder angegeben, auch ohne Zubehör angeliefert. Dieses können Sie separat oder schon als Set beim Artikel selber erwerben.
Das Modell wird aus ökologischen Gründen ohne Dachbelag zur Ersteindeckung angeliefert. Für eine langfristige und beständige Dacheindeckung wird die selbstklebende Dachfolie (Art-Nr. 17950) empfohlen, welche Sie ebenfalls bei uns in der entsprechenden Zubehör-Rubrik erwerben können. Bitte beachten Sie den variierenden Rollenbedarf in den Details.
Ihre Vorteile
| Made in Germany Das in Bremen ansässige Unternehmen legt besonderen Wert auf Qualität. Demnach wird dieses Modell auch in Deutschland hergestellt. |
|
| Vielseitig erweiterbar Das zahlreiche Zubehör von KARIBU sowie die Anbauten lassen der Kreativität freien Lauf. Sowohl beim stilvollen Einrichten des Innenbereichs als auch beim Dekorieren der Fassaden. |
|
| Lange Herstellergarantie Überzeugt von Qualität und Stabilität gewährt der Hersteller KARIBU eine fünfjährige Herstellergarantie auf die Konstruktion. |
|
| Aus nordischer Fichte Insbesondere bei Gartenhäusern eignet sich die naturbelassene oder lackierte nordische Fichte, auf Grund ihrer widerstandsfähigen Materialeigenschaften und der einheitlichen Optik. |
Lieferumfang
1x Gartenhaus Bastrup inkl. Montageanteilung und -material in verschiedenen Farben und Größen
Bitte berücksichtigen Sie, dass die Anlieferung dieses Artikels per Spezialspedition erfolgt und die Ware mit einem großen 40t – LKW angeliefert wird. Die angegebene Lieferadresse muss entsprechend für dieses Fahrzeug anfahrbar sein.
1x KARIBU Gartenhaus Bastrup4 , naturbelassen , ca. 454,5 x 297 x 222 cm
Details
- Artikelbezeichnung: Bastrup 4 im Set mit Anbaudach 2 m breit, 28 mm Rückwand
- Material: nordische Fichte
- Dachform: Pultdach
- Dachtyp: Massivholzdach
- Schneelast (kg/m²): ca. 125
- Tür Scheibe Material: Kunstglas
- Schloss: Buntbartschloss mit 2 Schlüsseln
- Dachfolie Bedarf (Rolle): 4
- Sortiment: Gartenhaus
- Farbe: naturbelassen
- Gartenhaus aus hochwertiger nordischer Fichte
- Doppelte Nut- und Federverbindung und wasserabweisende Profilierung
- Keine Gewindestange nötig durch patentierte 6-Plus-Eckverbindung
- Gewicht (kg): ca. 660,2
Maße (L/B/H)
- Wandstärke (mm): ca. 28
- Sockelmaß Breite (mm): ca. 2200
- Sockelmaß Tiefe (mm): ca. 2800
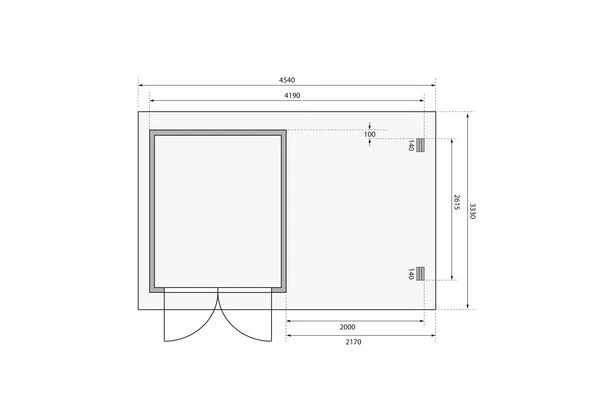
- Außenmaß Breite (mm): ca. 4200
- Außenmaß Tiefe (mm): ca. 2970
- Innenmaß Breite (mm): ca. 2140
- Innenmaß Tiefe (mm): ca. 2740
- Seitenhöhe (mm): ca. 2010
- Firsthöhe (mm): ca. 2220
- Grundfläche (m²): ca. 6,16
- Umbauter Raum (m³): ca. 12,9
- Dach Materialstärke (mm): ca. 16
- Dachbreite (mm): ca. 4545
- Dachtiefe (mm): ca. 3330
- Dachüberstand vorne: 280
- Dachüberstand linke Seite (mm): ca. 175
- Dachüberstand rechte Seite (mm): ca. 175
- Dachüberstand hinten (mm): ca. 250
- Dachfläche (m²): ca. 15,7
- Dachneigung (°): ca. 3
- Tür Breite (mm): ca. 705
- Tür Höhe (mm): ca. 1765
- Durchgangsmaß Breite (mm): ca. 1400
- Durchgangsmaß Höhe (mm): ca. 1730
Artikelmerkmale
| Attribute | Werte |
|---|---|
| Breite | 297 |
| Dachart | Pultdach |
| Farbe | natur/beige |
| Material | Holz |
| Länge | 454.5 |
| Rahmenmaterial | Holz>Fichte |
Fichtenholz
Fichtenholz ist in Europa die am häufigsten vorkommene Holzart. Die Bäume wachsen zudem schnell, so dass das Holz preiswert gehandelt wird. Fichtenholz hat eine helle Farbe, die mit der Zeit gelbbbraun nachdunkelt. Die Oberfläche weist eine Maserung auf, die deutlich Astlöcher zeigen kann. Das Holz weist eine gute Tragfähigkeit auf und wird daher gern als Konstruktionsholz verwendet. Fichtenholz muss für den Außeneinsatz mit Holzschutzmitteln behandelt werden, damit es ansehnlich bleibt. Um Möbel aus Fichtenholz langfristig zu schützen empfiehlt es sich, eine Abdeckhaube zu verwenden und die Imprägnierung gegebenenfalls hin und wieder aufzufrischen.































Rezensionen
Es gibt noch keine Rezensionen.